HOME I KONTAKT I IMPRESSUM I SITEMAP
AKTUELLES ÜBER UNS LEISTUNGEN TECHNISCHE DATEN HAUSVORSCHLÄGE KONTAKT

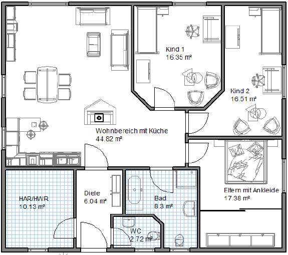
BUNGALOWS - Bungalow

Hürdenlos und Ebenerdig

Das ebenerdige Wohnen mit großzügigen Räumlichkeiten bietet auch für ältere Bauherren höchsten Wohnkomfort.
Mit schrägen Wänden erhalten die Wohnräume einen interessanten Schnitt.

Voll und ganz auf die Bedürfnisse eines Rollstuhlfahrers abgestimmt. Keine Barrieren, niedrige Brüstungen und viel Raum um
sicher und problemlos in allen Räumen zu wenden.

- 3 Schlafzimmer
- Wohnfläche ca. 125qm
Für eine Großansicht des Bildes klicken Sie auf das kleine Bild.
zurück zur Übersicht
HOME I KONTAKT I IMPRESSUM I SITEMAP