HOME I KONTAKT I IMPRESSUM I SITEMAP
AKTUELLES ÜBER UNS LEISTUNGEN TECHNISCHE DATEN HAUSVORSCHLÄGE KONTAKT

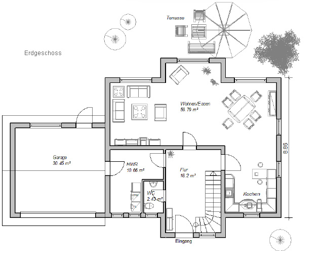
EINFAMILIEN-HÄUSER - Wohnhaus mit Doppelgarage

Dieser Grundriss ist wie geschaffen für eine Familie mit zwei bis drei Kindern.
Der großzügig geplante Ess- und Wohnbereich mit seinen zweiflügeligen Fensterelementen mit integrierter Küche bietet
ausreichenden Platz. Im Dachgeschoss ist das Elternschlafzimmer, drei Kinderzimmer sowie ein geräumiges Badezimmer
angeordnet.

Die angebaute Doppelgarage steht optisch und qualitativ Ihrem Wohnhaus in nichts nach.
Für eine Großansicht des Bildes klicken Sie auf das kleine Bild.
zurück zur Übersicht
HOME I KONTAKT I IMPRESSUM I SITEMAP