HOME I KONTAKT I IMPRESSUM I SITEMAP
AKTUELLES ÜBER UNS LEISTUNGEN TECHNISCHE DATEN HAUSVORSCHLÄGE KONTAKT

EINFAMILIEN-HÄUSER - Wohnhaus mit 2 Vollgeschossen

Quadratischer oder rechteckiger Grundriss mit einem perfekt platzierten Eingangsbereich, licht durchflutete Räume durch
bodentiefe Fensterelemente, sowie ein Zeltdach wirken einladend und repräsentativ zugleich.
Die Visitenkarte ihres Eigenheimes ist der großzügig gestalte Eingangsbereich.

Der offen gestaltete Wohnbereich mit integrierter Küche lädt sie zum Verweilen ein. Durch die großen Fensterelemente entsteht
ein licht durchflutetes Ambiente. Über die integrierte Treppe gelangen sie ins Obergeschoss.

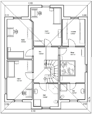
Hier ist genügend Platz für das Elternschlafzimmer mit Ankleide und direkt zugänglichem Bad, sowie drei Kinderzimmer mit
separatem Bad.
Für eine Großansicht des Bildes klicken Sie auf das kleine Bild.
zurück zur Übersicht
HOME I KONTAKT I IMPRESSUM I SITEMAP